136大桑村須原(家屋・土地)
更新日:2026年03月18日
外観
外観
物件概要
| 物件面積 | 土地 宅地他:356.16m2 |
|---|---|
| 物件設備 | 水道:簡易水道 電気:使用可 台所:プロパンガス 風呂:灯油 トイレ:水洗、洋式 駐車場:有り、1台分 |
| 住所 | 長野県大桑村大字須原 |
| 建築年 | 昭和37年築 |
| 構造 | 木造2階 |
| 売却希望価格 | 170万円 |
| 家屋の状況 | 大規模な改修が必要 |
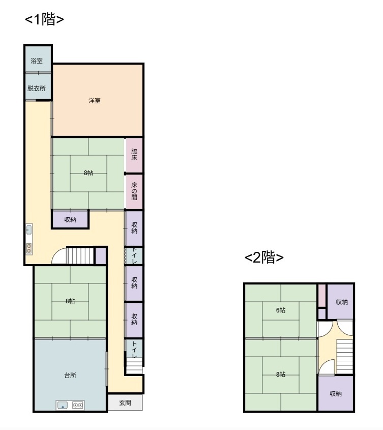
間取り
- 1階 和室3部屋、洋室1部屋、台所、風呂、トイレ
- 2階 和室2部屋
主要施設
| 須原駅 | 0.1km(徒歩 1分) |
|---|---|
| 役場 | 3.2km(車 5分) |
| 古根医院 | 3.7km(車 6分) |
| 大桑小学校 | 6.4km(車 8分) |
| 大桑中学校 | 3.2km(車 5分) |
| 大桑保育園 | 0.4km(徒歩 6分) |
位置図
この記事へのお問い合わせ先
大桑村役場 住民課 生活環境係
住所:長野県木曽郡大桑村大字長野880番地1/ 電話番号:0264-55-3080/ FAX番号:0264-55-4134
(50.7kbyte)